PACIFIC PALISADES

PACIFIC PALISADES - California 34.0467° N, 118.5464° W

Architecture, Interiors - 7,200 SF Residential

Pacific Palisades

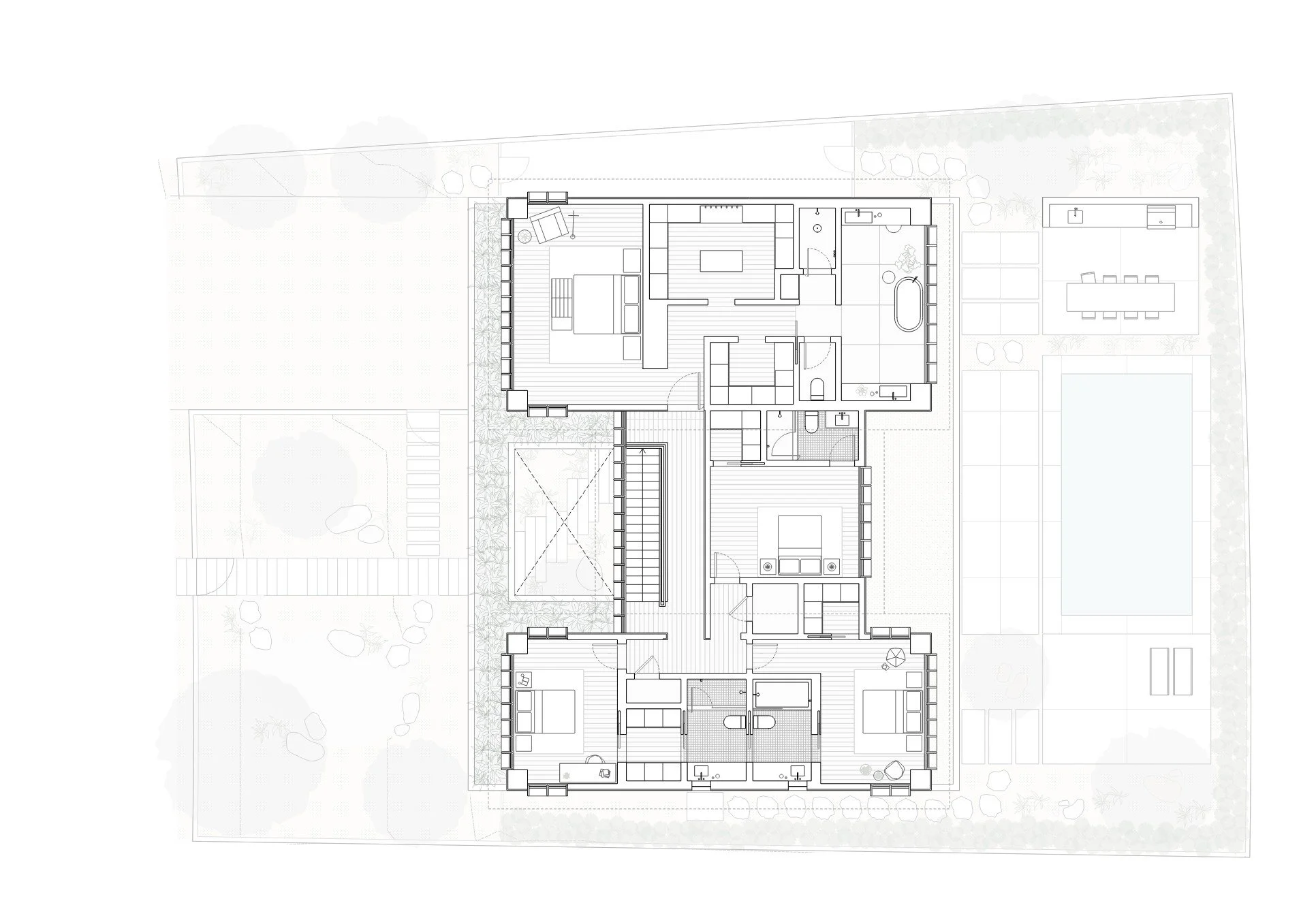
The Palisades Project is a 7,200-square-foot home designed for a family who lost their house in a wildfire. It is a work of renewal and memory - an architectural response to both trauma and resilience. The ground floor is conceived as a burnished plaster plinth - thick, grounded, and almost geological. Above it, the upper volume is wrapped in blackened yakisugi siding. The decision to char the wood is not aesthetic posturing, but a direct and poetic act of transformation. The family lost their home to fire; the new one wears fire on its skin as memory, as protection, and as quiet defiance. Charred wood resists future ignition - the house literally armors itself. The second level is framed by an elevated green roof, its vegetation spilling gently over the edges. The gesture softens the structure’s horizontality, buffers heat, and forms a defensible layer between building and landscape. In wildfire country, landscape is not decoration. It is a tool of survival - an active part of the home’s life-safety system. Every move in the design is deliberate. There is no novelty for novelty’s sake. Form arises from logic - structural, climatic, experiential. The result is an architecture of calm strength: stacked horizontal volumes, deeply carved courtyards, decisive overhangs. It is a house that holds its ground without spectacle. The Palisades Project embodies the studio’s belief that restraint is the highest form of luxury. Wealth here is expressed not in excess, but in craft - in the thickness of plaster, the weight of wood, the precision of detail. It is an architecture that honors endurance over display, permanence over pretense.

 

PACIFIC PALISADES - Green Roof

PACIFIC PALISADES - Green Roof

PACIFIC PALISADES - Courtyard

PACIFIC PALISADES - Approach

PACIFIC PALISADES - Level 02

PACIFIC PALISADES - Level 02

PACIFIC PALISADES - Pool

PACIFIC PALISADES - Pool

PACIFIC PALISADES - Pool

PACIFIC PALISADES - Living

PACIFIC PALISADES - Level 01

PACIFIC PALISADES - Level 02